一、项目编号:SCETC22014
二、项目内容及要求。
(一)项目名称:竹苑餐厅提档升级改造工程设计单位招标
(二)预算金额:7万元
(三)采购方式:公开招标
(四)项目内容:
经学校研究决定,在2022年暑假期间对竹苑餐厅进行装修改造,以便更好地服务学生。拟通过招标确定一家装修设计公司对竹苑餐厅后厨、就餐大厅进行整体设计,包括水、电、气、厨房设施设备、消防、智能化监控系统、空调系统等进行整体设计,以达到提档升级的目的。
1.具体设计内容和要求:
序号
| 设计项目
| 单位
| 数量
| 设计要求
|
1
| 竹苑餐厅就餐大厅
| ㎡
| 700
| 1.就餐大厅吊顶风格设计方案;
2.与售卖品种相适应的餐厅风格设计方案;
3.就餐大厅灯光设计方案;
4.就餐大厅中央空调设计方案;
5.就餐大厅消防设施、视频监控设施设计方案。
|
2
| 竹苑餐厅后厨标准化设计
| ㎡
| 700
| 1.后厨设计应按照中华人民共和国国家标准GB31654—2021《食品安全国家标准餐饮服务通用卫生规范》的要求进行;
2.食堂后厨功能分区设计方案(分区包括:男女更衣间、收货粗加工间、蔬菜切配间、肉类切配间、热烹间、小炒区、凉菜区、蒸煮间、面点间、消洗间、售卖间);
3.各功能间的水(包含给排水)、电、气改造、消防设施、视频监控设施设计方案;
4.各功能间的吊顶、墙砖、地砖铺设方案、天然气改造方案、地砖铺设设计方案。
|
3
| 施工图
|
|
| 施工图设计的深度应能满足施工、安装、加工及施工预算编制要求,设计原件应包括说明书、设计图纸、材料表等内容。
|
4
| 工程预算
|
|
| 所有涉及到的装饰、装修设计内容工程量(包含各类材料、人工、设施设备)进行分项预算,编制预算表,预算表包括项目、所需材料名称、规格、数量、市场单价、施工人工费用等,最后得出工程整体预算。
|
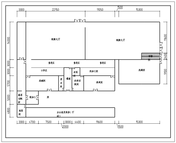
2.餐厅平面布局图:
(1)餐厅原始平面布局图

餐厅装修设计建议平面布局图

(五)设计标准及设计理念
1.后厨按照中华人民共和国国家标准GB31654—2021《食品安全国家标准餐饮服务通用卫生规范》的要求,对餐厅进行标准化改造。
2.就餐大厅以现代简约风格为主题,同时满足学生就餐、学习、休闲、社交娱乐为一体的功能。
(六)中标单位中标后,应根据甲方要求进行投标方案优化,最终参照建设部《建筑工程设计文件编制深度规定》(2016年版)的要求,完成餐厅总体平面布局图、就餐大厅和后厨效果图、施工图和工程预算。工程施工图设计的深度应能满足施工、安装、加工及施工预算编制要求,设计原件应包括说明书、设计图纸、材料表。
三、投标人的资质要求
1、具有独立承担民事责任能力的商家;
2、具有良好的商业信誉和健全的财务会计制度;
3、具有履行合同所必需的设备和专业技术能力;
4、有依法缴纳税收和社会保险的良好记录;
5、此前三年内在经营活动中没有重大违法违规记录,且未被列入我校招投标活动失信名单;
6、本项目不接受联合体投标;
7、其他特殊条件:建筑装饰设计公司应具备国家行政主管部门颁发的叁级及以上资质标准;建筑设计公司应具有国家行政主管部门颁发的建筑装饰工程设计专项丙级及以上资质。
四、招投标活动失信名单
商家若存在虚假应标、无正当理由放弃中标等情形(详见采购文件第四章“投标承诺函”),商家及其法人代表将被纳入我校招投标活动失信名单,三年内不得参与我校的招投标活动。
五、采购文件的发放
1.时间:2022年3月18日至2022年3月24日期间上午9:00-11:00,下午15:00-17:00(周末及法定假日除外)。
2.地点:四川工程职业技术学院资产采购与管理处(行政办公楼408)。
3.发放方式:
投标商家填写《投标报名表》(见本公告附件),并将填写好的《投标报名表》以附件形式发送至资产采购与管理处邮箱,并电话联系资产采购与管理处确认报名信息,确认无误后发放采购文件(电子文档,免费)。
六、响应文件的密封和递交
1.递交响应文件的地点和截止时间
(1)递交地点:四川工程职业技术学院资产采购与管理处(行政办公楼408)。
(2)投标人应在开标时间,即:2022年3月25日上午9点前将响应文件送达资产采购与管理处。
(3)因采购文件的修改或其他原因推迟投标截止日期的,则按资产采购与管理处书面(或电子邮件)通知规定的时间递交。
(4)本项目投标有效期为90日历天。
2. 响应文件的密封
(1)响应文件由正本、副本、开标一览表、样品(若有)组成。均须单独封装,分别由法定代表人(或经其正式授权的代理人)在响应文件相应位置签字并加盖公章。
(2)响应文件外层密封袋应粘上响应文件封面,并填写相应内容。所有外层密封袋的封口处均应粘贴牢固,加上封条,并加盖投标人公章。
本项目原则上不接受邮寄投标,投标人确因特殊情况无法现场递交标书的,应提前联系资产采购与管理处,征得同意后方可邮寄投标,但招标人不对响应文件的有效性负责,所有由此产生的风险和责任由投标人承担。
对于不符合以上要求的响应文件,学院有权拒收响应文件或视为无效投标。
七、踏勘现场:
踏勘时间为:3月23日星期三上午9:30
踏勘地点为:四川工程职业技术学院竹园餐厅
踏勘联系人:江忠平(15183669796)
八、联系方式:
地 址:四川省德阳市泰山南路二段801号
联 系 人:申老师
联系电话:0838-2604055(含传真)
资产采购与管理处邮箱:zhaobiaoban@scetc.edu.cn
开户名称:四川工程职业技术学院/开户行:中国工商银行德阳市东大街支行 /账号: 2305 3631 0902 6440 176-0000 00003。
投标报名表(编号:SCETC).docx